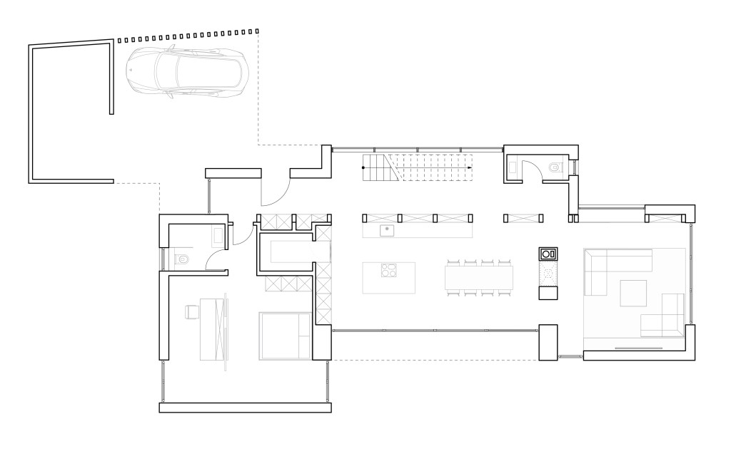
Status: cancelled I Fertigstellung: 2024 I Wohnfläche: 182m2 I Leistung: Entwurf/Werkplanung I Koop: Architekt Martin Hilz
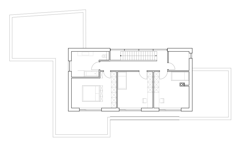
Status: cancelled I Fertigstellung: 2024 I Wohnfläche: 182m2 I Leistung: Entwurf/Werkplanung I Koop: Architekt Martin Hilz