Zum Inhalt springen

WeAreArchitects

  • Aktuell
  • Werksverzeichnis
  • Kontakt
Menü
Press Enter / Return to begin your search.
Abonnieren
  • Aktuell
  • Werksverzeichnis
  • Kontakt

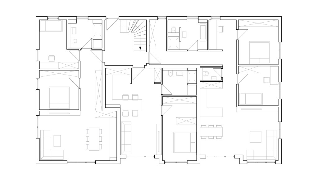
#MFHNFS

Entwurf Werkplanung22/05/202115/08/2023

Status: fertig I Fertigstellung: 2023 I Wohnfläche: 688m2 I Leistung: Entwurf I Werkplanung

Beitrags-Navigation

place 2 bee
Erich H.

WeAreArchitects

Erstelle eine Website oder ein Blog auf WordPress.com
Impressum I Datenschutz
  • Abonnieren Abonniert
    • WeAreArchitects
    • Du hast bereits ein WordPress.com-Konto? Melde dich jetzt an.
    • WeAreArchitects
    • Abonnieren Abonniert
    • Registrieren
    • Anmelden
    • Kurzlink kopieren
    • Melde diesen Inhalt
    • Beitrag im Reader lesen
    • Abonnements verwalten
    • Diese Leiste einklappen