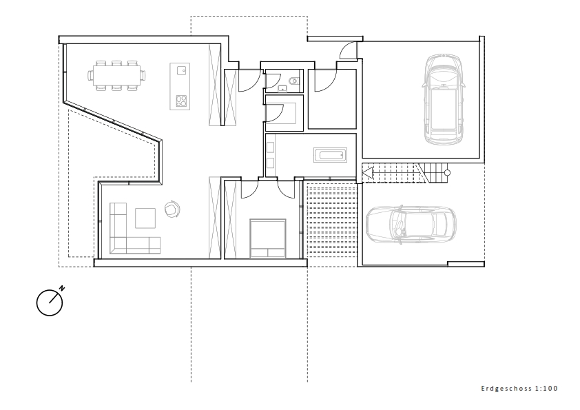
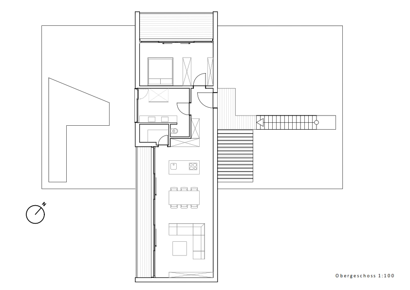
Vorentwurf GEntwurf19/04/201806/02/2024 Status: Studie I Fertigstellung: unbekannt I Wohnfläche: 189m2 I Leistung: Vorentwurf I Koop: Architekt Martin Hilz